This new exclusive development offers a mix of 9 stunning idyllic family homes, made up of 2 bungalows and 7 houses all finished to the highest standard. The location offers a desirable non estate position and is ready for reserving now!

Plot 3: 4 bed detached bungalow - POA

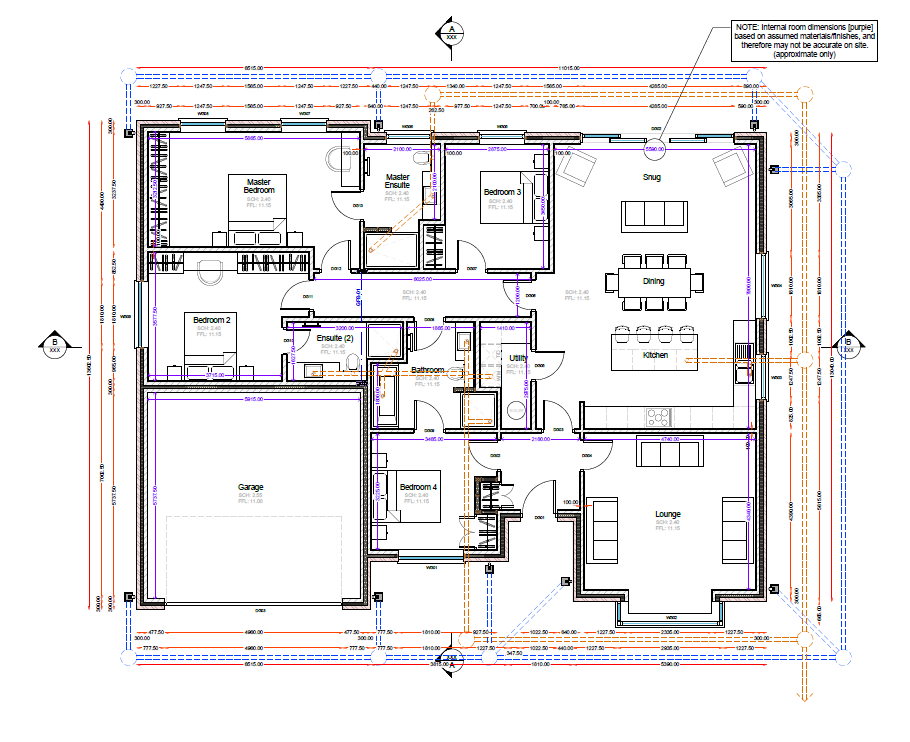
Plot 3 is a unique 4 Bedroom Bungalow with Integral double garage

This superb country bungalow offers 4 generous double bedrooms and is approx 2,185 sq ft and is being built with Shelford cream bricks and agate grey (greeny/grey) UPVC double glazed windows beneath a slate grey roof. The home incorporates an integral double garage with a min of 3 parking spaces on the drive. The delightful home welcomes you into the front hallway with storage space. The kitchen aka the Heart of the home offers a lovely bright and airy open plan family kitchen / living / dining room, with oak glazed internal doors. The kitchen is stylishly fitted with a high specification kitchen, perfect for entertaining family and friends and benefits a large set of centre opening patio doors bringing your garden into your home, with additional windows on the side elevation that help to maximise the natural light. The kitchen leads through to a utility room to provide additional storage to help keep your kitchen clutter free. There is a separate lounge with bay window overlooking the front garden accessed from the front halfway, along with Bedroom 4 which overlooks the front of the property and provides a fitted wardrobe and Jack& Jill ensuite access to the main bathroom. The second hallway leads you to the rest of the bedrooms and main bathroom. The master bedroom overlooks the rear garden and provides a large fitted wardrobe and ensuite shower room. Bedroom two also benefits from an ensuite and fitted wardrobes. The third double bedroom overlooks the rear aspect and comes fitted with wardrobes and could easily be used as a home office or craft room to suit your needs.

  • Open Kitchen/Dining/Family Room 7.9m x 5.6m
  • Lounge 4.7m x 4.3m
  • Utility Room 2.9m x 1.4m
  • Bedroom 1 (excluding en-suite) 5.8m x 3.2m
  • Bedroom 2 (excluding en-suite) 3.7m x 3.5m
  • Bedroom 3 / Home Office 3.4m x 2.9m
  • Bedroom 4 3.4m x 3.2m
  • Integral Double Garage
  • Block paved driveway

    Plot 3 - Estimated completion date - Spring 2027

  • We are pleased to confirm that our next development of quality homes will be in the village of Bucknall which is a small, rural village in the East Lindsey district of Lincolnshire. Claimed to be the birthplace of Lady Godiva. A great location, only a short drive to Bardney, 5 miles from the popular town Woodhall Spa, 7 miles to the market town of Horncastle. Bucknall is also 15 miles to the Cathedral City of Lincoln, with rail connections and access to the A1 near Grantham or Newark.

    Village

    The village is rural and quiet and has a population of around 370 residents. It is surrounded by beautiful countryside, making it a popular destination for walkers and cyclists. It enjoys an appealing community feel with primary school and active village hall, church, playground, residential care home, rated good and regular bus links to Lincoln and Horncastle.

    Schools

    Bucknall Primary School currently have 40 pupils on roll. They offer nursery places from the age of 3 and wrap-around care provided by an external company, JB sports. This is available from 8am – 5.30pm. The school received a 'GOOD' Ofsted rating in 2023.

    In terms of secondary schools, children that go to Branston Academy, Barnes Wallace and Horncastle Banovalum. The school is happy to support children who wish to do the 11+ and they then go onto Horncastle Queen Elizabeth's Grammar School.

    Location

    Bucknall is situated within the Lincolnshire Wolds, an Area of Outstanding Natural Beauty, and is characterized by its peaceful, rural setting with farmland, picturesque landscapes, and a close-knit community.

    Nearby Bardney has a variety of local shops, butchers, post office, pharmacy, hairdressers, a friendly pub and fish & chip shops.

    Woodhall Spa is very popular for its historic Kinema in the Woods, Jubilee Park outdoor swimming pool, campsites, golf course, tennis and new padel tennis courts. It is well served by local amenities, including a supermarket, range of charming shops and a variety of lovely restaurants and hotels.

    The market town of Horncastle is the gateway to the Lincolnshire Wolds offering walking & cycling trails. It has various shops and antique centre and holds regular markets & farmers markets. Woodhall Spa & Horncastle both have supermarkets, doctors and dentist surgeries.

    Lincoln offers a variety of facilities including an excellent choice of schools, Universities, shops, restaurants, public houses and leisure activities.

    Features

    All of the Woodbank Construction New Builds on this development will have their rear gardens laid to lawn with a patio area. An outside tap, outside electric socket fitted & EV Charger is fitted as standard. All garages fitted with electric garage doors. Each home is fitted with a mains powered burglar alarm and various outdoor Lights - Dusk to Dawn lights on the front of house, on/off lights to rear garden and PIR/security lights where we feel needed for passages.

    All external walls are constructed of brick and block with cavity construction insulation where possible. Brickwork includes a dental or dog toothed feature to eaves for zero maintenance. Roof space will include the required loft insulation, TV aerials and loft ladders are installed to the main loft (where applicable).

    The homes will have air source central heating, hot water cylinders and include underfloor heating to the ground floor, with radiators on the first and second floors. All our kitchens, bathrooms and fittings are chosen with the utmost care. Bathroom/Shower rooms are installed with waterproof wall panelling/mermaid board - This is usually fitted full-height to showers. With half-height to other wet walls in bathrooms & ensuites. Waterproof wall panelling to splashbacks in WCs.

    All Internal electrical sockets & switches are white with white downlights usually fitted in - utility, bathrooms, ensuites, office and kitchen (i.e. kitchen part of open family room but pendant light over kitchen island & dining areas). Pendant lights are then fitted as standard in the lounge, bedrooms, hall & landing. TV Aerial points fitted in – Lounge, family kitchen & bedrooms

    All internal walls finished with a neutral emulsion finish. Ceiling in white matt emulsion, with coving fitted in the hall, landing, lounge and master bedrooms (where possible). All woodwork is white satin finish. Oak doors are finished with clear oil/varnish.

    Carpets are fitted in lounge, bedrooms, study, stairs & landing; and LVT fitted in the entrance hallway, WC, kitchen-diner, utility room, ensuites & bathrooms.

    Your home also benefits from Fibre to the premises (FTTP), also known as ultrafast full fibre broadband, involves laying fibre optic cables directly from the broadband exchange right into your home, making modern day life and working from home go smoothly.

    Your new Woodbank Construction home also comes with a 6 year Guarantee covered by the Council of Mortgage Lenders (CML) Professional Consultants Certificate.

    Additional Information

    When first moving into any new home, the higher the room temperature the heating is run, the more shrinkage will occur. The heating system is designed to run constantly at a lower temperature, which is more comfortable, efficient and consistent for the property. We cannot guarantee against shrinkage or warping of doors, floors, and timberwork etc. made up of natural materials. We recommend that all gates are securely closed to reduce warping and risk of wind damage. After around 12 months (at your convenience during normal working hours), upon request, we will return to carry out remedial snagging e.g. easing doors, fill and redecorate shrinkage cracks in excess of 3mm.

    Vehicles are to be parked in your own garage or driveway, not left on the road. All properties on the development have a minimum of 2 allocated parking spaces and there are 2 additional parking spaces to be left free for use by visitors to the close.

    Once you have paid your deposit, if the specification or design is altered to your specific requirements and you then fail to complete, you shall be held fully liable for the cost of the alterations or amendments.

    All goods remain the property of Woodbank Construction Ltd until payment is made in full. Any extras need to be paid within 7days of the invoice, not to be held subject to completion of any outstanding item or works.

    You will probably have seen that on many new developments, the purchasers are tied into a contract for the private maintenance of grassed/hedge shared areas etc. Where the responsibility of the maintenance is handed over to a management company to guarantee that the shared areas are always maintained to complement the standard of the houses, with an index linked yearly contribution. At Woodbank Construction we do things slightly differently and hand this over to the new residents to work together to decide and arrange how best to maintain any private shared areas.

    Please Note: Newly built properties can sometimes differ from the original plans, and are subject to change without prior notice to potential purchasers, and therefore these descriptions, floor plans, measurements and any other information within these sales particulars are offered for guidance purposes only.

    Internal room dimensions are approx only, based on assumed materials/finishes, and therefore may vary slightly on site.

    Contact Us


    Or drop us a message and we'll get back to you shortly.